Vendita
BORGO SAN DALMAZZO VIA MARCONI
BORGO SAN DALMAZZO (CN)
€ 220.000
Borgo San Dalmazzo – Via Marconi
In prestigiosa palazzina di nuova costruzione – Classe energetica A
Proponiamo alloggio nuovo, realizzato con tecnologie moderne e materiali di alta qualità, pensato per garantire comfort abitativo, risparmio energetico e massima silenziosità.
Dotazioni principali:
Ventilazione meccanica controllata (VMC) per un ricambio d'aria costante
Riscaldamento a pavimento con gestione dei consumi ottimizzata
Isolamento termico e acustico di ultima generazione
Infissi a taglio termico ad alte prestazioni
Basso impatto energetico e ridotti costi di gestione
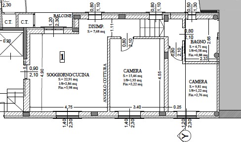
Composizione interna:
Ingresso
Ampio soggiorno con zona cucina
Due camere da letto luminose
Bagno con finiture moderne
Balconi vivibili
Completano la proprietà:
Cantina
Box auto privato
Una soluzione ideale per chi desidera un'abitazione moderna, efficiente, silenziosa e pronta all'uso, in un contesto comodo ai servizi e vicino al centro del paese.
OBIETTIVOCASA DA OLTRE 30 ANNI AL VOSTRO SERVIZIO.
In prestigiosa palazzina di nuova costruzione – Classe energetica A
Proponiamo alloggio nuovo, realizzato con tecnologie moderne e materiali di alta qualità, pensato per garantire comfort abitativo, risparmio energetico e massima silenziosità.
Dotazioni principali:
Ventilazione meccanica controllata (VMC) per un ricambio d'aria costante
Riscaldamento a pavimento con gestione dei consumi ottimizzata
Isolamento termico e acustico di ultima generazione
Infissi a taglio termico ad alte prestazioni
Basso impatto energetico e ridotti costi di gestione
Composizione interna:
Ingresso
Ampio soggiorno con zona cucina
Due camere da letto luminose
Bagno con finiture moderne
Balconi vivibili
Completano la proprietà:
Cantina
Box auto privato
Una soluzione ideale per chi desidera un'abitazione moderna, efficiente, silenziosa e pronta all'uso, in un contesto comodo ai servizi e vicino al centro del paese.
OBIETTIVOCASA DA OLTRE 30 ANNI AL VOSTRO SERVIZIO.
Contratto Vendita
Rif IMMO-124896025
Prezzo € 220.000
Provincia Cuneo
Comune Borgo San Dalmazzo
Indirizzo Via Guglielmo Marconi">
Vani 4
Camere 4
Bagni 2
Classe energetica
A+ (DL 192/2005)
EPI 175 kwh/m2 anno
Piano 1 / 2
Riscaldamento autonomo
Condizioni nuova costruzione
Spese condominiali € 50
Ascensore si
Cucina a vista
Consistenze
| Descrizione | Superficie | Sup. comm. |
|---|---|---|
| Principali | ||
| Immobile - 1° piano | 96 Mq | 96 Mqc |
| Totale | 96 Mqc | |



























Zoom della mappa
Apri con:
Apple Maps
Google Maps
Waze
Apri la mappa






